你現在的位置:首頁 >> 新聞資訊
全自動液體包裝機工作原理及結構技術參數
目前,食品包裝機械競爭日趨激烈,未來應配合產業自動化趨勢,促進包裝設備總體水平提高,尤其針對中小型企業,發展多功能、高效率、低消耗的食品包裝設備,具有非常重要的意義。
1液體包裝機主要組成部分及主要技術參數
液體包裝機的結構如圖1所示。其主要參數:
生產能力/袋·min-1:20~50
包裝質量/g·袋-1:500
包裝計量精度/%:-2~2薄
膜材質:聚丙烯
薄膜寬度/mm:260
供料壓力/MPa:1
電源電壓/V:380
整機功率/kW:0.75
外型尺寸/mm:600×600×1210

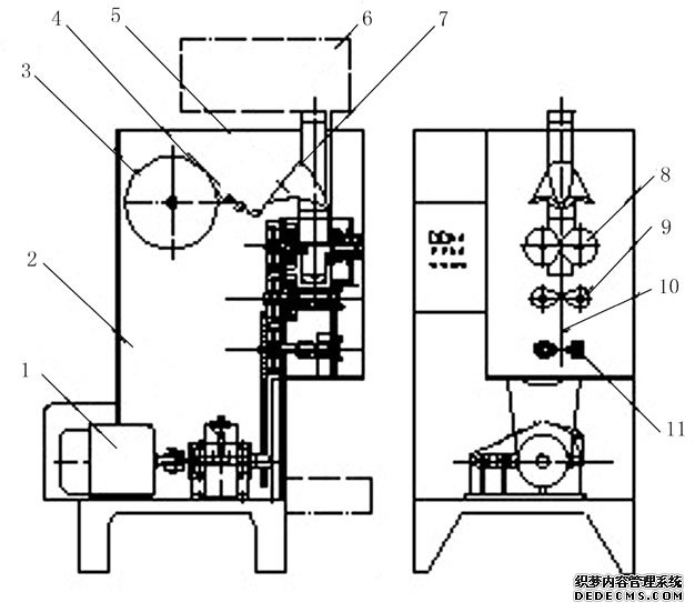
1.電動機2.減速器3.卷筒4.牽引輥輪5.翻領式袋成型器6.供料箱7.進料筒8.縱封器9.橫封器10.包裝材料11.切斷裝置
圖1 液體包裝機
2 液體包裝機工作工藝流程
液體包裝機的工藝流程如圖2所示。
3 液體包裝機工作原理
液體物料自供料箱經包裝機的頂部后,經計量后送入進料筒。卷筒上的包裝材料(如聚丙烯薄膜)經三道牽引輥輪引導入進料筒外壁的同時,被翻領式袋成形器逐漸卷繞成對接筒狀,縱封器上的一對連續逆向回轉的縱封滾輪在對接處加熱加壓將其縱向熱封牢固??v封輥輪除起熱封作用外,同時還對薄膜進行拉送。被包裝物料由下料槽與成型器內壁組成的充填筒導入塑料袋內。由橫封器進行橫向熱封形成橫向封口,切斷裝置上的旋轉切刀與固定切刀相接觸時將橫向封口沿中線切斷分開,完成包裝袋的頂封和下一個袋子的底封。底封后的包裝袋又可直接向袋內下料,隨之移動一個工位完成頂封封口,再經過切斷裝置切斷,完成包裝工序,產品由運輸裝置運走。整個包裝過程是全自動連續的。


